5
$4,380,000 Sale
Listed 1 hour
N/A WESTNEY ROAD S
· 0
· 0.0
· 0
· 2 ac
Key Facts
Key facts for N/A WESTNEY ROAD S
Property Type
Commercial
Parking
Garage: No, 0 parking
MLS #
E12435878
Size
2 ac sqft
Basement
-
Listed on
-
Lot size
-
Tax
-
Days on Market
-
Year Built
-
Maintenance Fee
-
Description
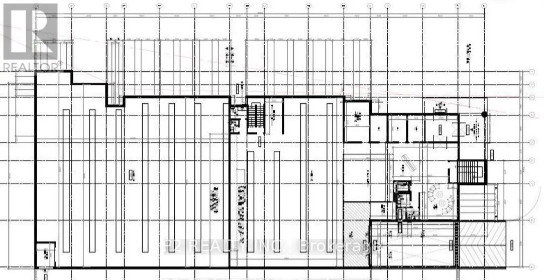
1.82 Acre property in a prime location with versatile zoning, ideal for a variety of commercial and industrial uses, providing endless opportunities for development. Excellent frontage on a main road in Ajax (Westney Road South)and ideal topography. Close proximity to the 401 Highway ensures excelle...nt accessibility and visibility. The property has potential for a two-story building with a total area of 44,000 square feet. The current owner has already submitted all required documents and applied for site plan approval, which is currently under process. Vacant land Not developed. This expansive parcel has been thoroughly vetted, with both Phase 1 and Phase 2 Environmental Site Assessments confirming the land is free of contamination. **EXTRAS** * Front con, pt 1 40r10545; s/t an easement, if any, in favour of the corporation of the town of ajax, over pt lt 12 range 3 broken front con, pt 2, 40r6913; s/t lt145266,lt145267 ajax. All information to be verified by the buyer. (id:10452)
Similar Properties (No results)
Listing courtesy of: P2 REALTY INC.
This REALTOR.ca listing content is owned and licensed by REALTOR® members of The Canadian Real Estate Association.