4
$935,000 Sale
Listed 5 hours ago
101 Waterford Passage
· 5
· 4.0
· 6
· 2587
Key Facts
Key facts for 101 Waterford Passage
Property Type
House, House
Parking
Garage: Yes, 6 parking
MLS #
A2263541
Size
2587 sqft
Basement
Unfinished, Full (Unfinished)
Listed on
-
Lot size
-
Tax
-
Days on Market
-
Year Built
2025
Maintenance Fee
-
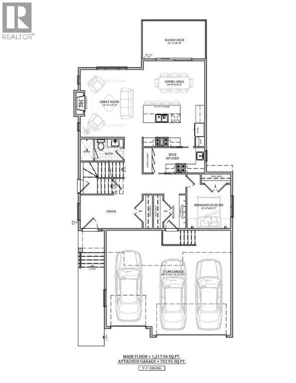
Description
Welcome to this stunning and thoughtfully designed home, located in the highly sought-after Waterford community of Chestermere. Situated on a wide corner lot, this residence offers over 2,500 sq ft of beautifully appointed living space, perfect for growing families or multi-generational living. Step... through the grand entry into a bright and spacious main floor that features a full bedroom and 3-piece bathroom ideal for guests or extended family. The heart of the home is the open-concept kitchen, complemented by a large, fully enclosed spice kitchen with direct access from both the mudroom and main kitchen, providing the ultimate convenience for culinary enthusiasts. Upstairs, you’ll find four well-sized bedrooms, including a luxurious primary suite with a spa-inspired ensuite and walk-in closet, as well as a second master suite with its own private ensuite. A large bonus room and an upstairs laundry room add practicality and comfort to this upper level. The unfinished basement offers exceptional potential, with a separate side entrance that allows for the development of a legal basement suite or custom space tailored to your needs. Located just minutes from schools, parks, shopping, and all amenities, this is an incredible opportunity to own a versatile and spacious home in one of Chestermere’s fastest-growing neighborhoods. (id:10452)
Similar Properties (No results)
Room Types
3pc Bathroom
-
Dimensions 6.17 Ft x 8.17 Ft
50.41 sqft
3pc Bathroom
-
Dimensions 9.00 Ft x 5.00 Ft
45 sqft
5pc Bathroom
-
Dimensions 8.75 Ft x 14.00 Ft
122.5 sqft
Listing courtesy of: Real Broker
This REALTOR.ca listing content is owned and licensed by REALTOR® members of The Canadian Real Estate Association.